Home / Property Search / , 27 St John's Walk

27 St John's Walk

WHY230172 10.jpg
WHY230172 04.jpg
WHY230172 02.jpg
WHY230172 05.jpg
WHY230172 01.jpg
WHY230172 03.jpg
WHY230172 06.jpg
WHY230172 10.jpg
WHY230172 04.jpg
WHY230172 02.jpg
WHY230172 05.jpg
WHY230172 01.jpg
WHY230172 03.jpg
WHY230172 06.jpg

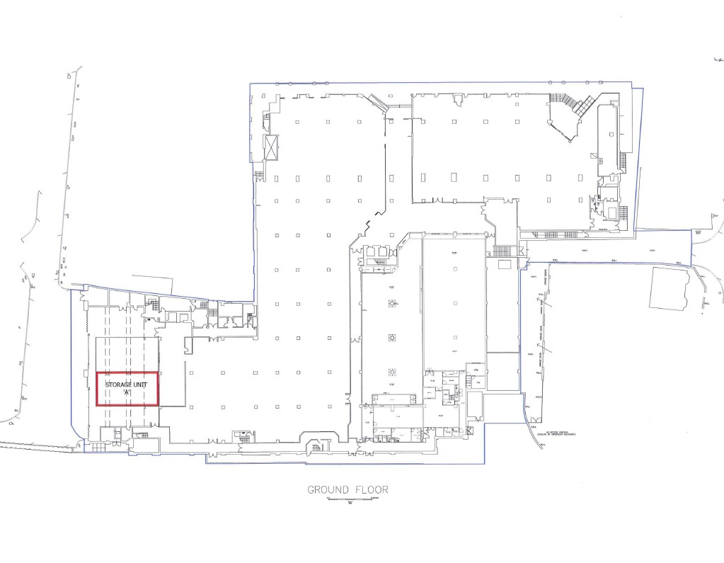
Description

The property forms part of an established shopping centre on the southern edge of the town centre, adjacent to Iceland and the lifts leading to the multi storey car park.
The Centre which is arranged over four floors and completed in 1993 provides extensive ground retail space of approximately with an excellent frontage to the covered pedestrian mall which has two entrances onto St John Street.

Key Contacts

Ewan Dodds

Ewan Dodds

Consultant